祝・糸島の家完成!『設計士にインタビューしてみた』Part2
こんにちは!プロモーションのハセガワです。
厳しい暑さもようやく落ち着き、過ごしやすい秋の季節がきたことにほっとしている今日この頃です。
カラッとした秋晴れの日は気持ちも引き締まり、新しいことに挑戦したくなりますね。
そんな季節に合わせるように、アネシス福岡でも新しいモデルハウスが9月下旬に完成いたしました🏠✨
このお家の魅力を皆様にお伝えするべく、設計士にこだわりや見どころをたっぷりインタビューしてきましたので、ご紹介します。
今回インタビューに答えてくれたのは…
設計士の田淵です!
コンセプトは『上質な暮らしが実現する表情豊かな家』
ハセガワ:
本日はよろしくお願いします!さっそくですが、この新しいお家を一言で表現するとどんなお家ですか?
田淵:
はい、こちらのお家は「上質な暮らしが実現する表情豊かな家」です。
ハセガワ:
素敵なコンセプトですね。どのような想いでこのコンセプトになったのでしょうか?
田淵:
私たち設計士は、土地が持つ条件や周辺環境を丁寧に読み解き、その土地にベストな配置、窓、外観を考え抜くことが仕事です。
このお家も土地の条件を活かして、窓から西側の公園、そして南側の山並みを眺められるように設計し、プライバシーを確保しながらも、すぐそばにある自然や季節の移ろいを感じて生活できるようにこだわって設計しました。
『心から暮らしたいと思える家って、こういうことなんだ』と体感していただきたいという思いが、このコンセプトへとつながっています。
設計士のこだわり① 空間全体の『質』と『窓配置』
ハセガワ:
とても落ちつきのあるお家ですが、どういったところにこだわっているのでしょうか?
田淵:
特定の『この場所』というよりも、空間全体の『質』にこだわりました。
例えば、
・足触りの良いチークの床材
・家具のような佇まいのグラフテクトキッチンは、人気のカラー『メルクリオ』を採用
・天井にアクセントを加えるレッドシダーの折下げ天井、それらを優しく照らす間接照明
一つひとつの素材が織りなす質感や雰囲気を大切にしました。

ハセガワ:
空間全体の質感や雰囲気を大切にされたのですね。
コンセプトにもあった『季節を感じる暮らし』についてですが、どのように設計に取り入れたのでしょうか?
田淵:
特に窓の配置にはこだわりました。
リビングの西側には大きなFIX窓を設けて、すぐ隣の公園を一枚の絵のように切り取る『借景』を楽しめるようにしました。

また、階段を上がる途中にあるホールからは、南側の山と広い空が眺められるようになっています。

設計士のこだわり② 間取りと動線の工夫
ハセガワ:
間取りを考える上で、何か意識されたことはありますか?
田淵:
将来的な暮らしの変化にも対応できるような工夫を凝らしています。
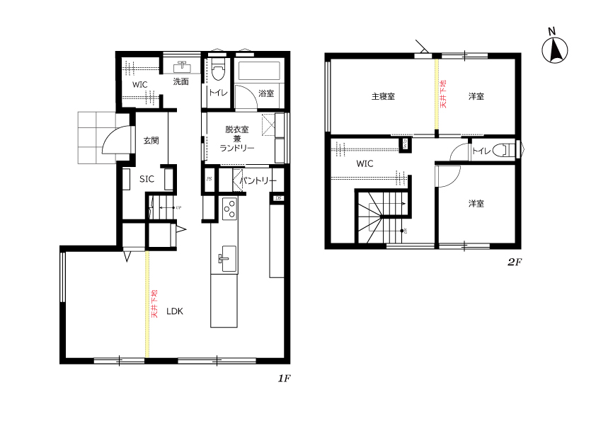
例えば、現在は広々としたLDKですが、将来的には空間を区切って、1階だけで生活が完結する『1LDK』としても使えるようになっているんです。
また、主寝室も将来的には空間を区切り、主寝室+洋室として使えるように設計しています。
ライフステージが変わっても、快適に暮らし続けられる仕掛けです。

ハセガワ:
将来を見据えた設計は安心感がありますね。
日々の暮らしに欠かせない『家事動線』についても気になるのですが、特にこだわったポイントはどこでしょうか?
田淵:
家事効率を上げる『回遊動線』がポイントです。
玄関
↓
脱衣室 兼 ランドリースペース
↓
パントリー
↓
キッチン
↓
リビング
リビングと玄関もつながっているため、家の中をぐるっと一周できる「回遊動線」になっています!
買い物から帰ってきてすぐに食品をしまったり、洗濯をしながら料理をしたりと、家事の移動がスムーズに行える家事ラクな暮らしを送れます!

設計士のこだわり③ 空間の有効活用
ハセガワ:
日々の暮らしの中では、家事ラク動線だけでなく収納計画も大事かと思いますが、このお家では何か工夫されたことはありますか?
田淵:
デッドスペースになりがちな空間を、余すところなく活用している点です。
例えば、
・シューズインクローゼット(SIC)の奥

・ウォークインクローゼット(WIC)の奥

しっかりと収納スペースを確保しました。
空間を最大限に有効活用し、収納力をアップする工夫です。
ハセガワ:
デッドスペースの活用、参考になります!
最後に…設計士からのメッセージ
ハセガワ:
このお家ではどんな暮らしができると思いますか?
田淵:
そうですね…朝は心地よい朝日と共に目覚め、昼間はお子様とすぐ隣の公園で遊んだり、テニスを楽しんだり。
夕方には庭の水やりをして、家族でご飯の支度をする。
そして夜は、間接照明だけの落ち着いたリビングで、ゆったりとくつろぐ…。
そんな贅沢な一日を過ごすことができるお家だと思います。
ハセガワ:
本当に贅沢な休日ですね!
それでは最後に、来場されるお客様へ「ここだけは見逃さないでほしい!」というポイントを教えてください。
田淵:
この2つはぜひ、こちらのお家で体感していただきたいです!
・一般的な建売住宅ではなかなか感じられない『窓からの景色の心地よさ』
・選び抜いた素材がつくりだす『上質で落ち着いた空間』
ぜひ実際に、ご自身の五感で魅力を確かめてください。
🎊糸島の家 完成見学会のお知らせ🎊
インタビューでご紹介した、こだわりと想いが詰まった糸島の家。 完成見学会を下記の日程で開催いたします!
-
開催日: 2025年10月18日(土)・19日(日)、25(土)・26(日)・11月1日(土)・2日(日)・3(月・祝)
-
場所: 福岡県糸島市二丈深江
-
ご予約: アネシス福岡公式LINEで先行予約受付中です!
皆様のご来場を、心よりお待ちしております。